![]()
《塩尾》国道沿いの煙草屋さん
![]()

国道28号線沿い、塩田漁港近くの元たばこ屋さん。
2階からは漁港が見えています。
国道沿いのため少し車の音は気になりますが、いったん中に入れば落ち着いた空間が広がります。昔のたばこ屋さんのスペースも少し面影が残りいい雰囲気です。周りが田んぼの田舎暮らしもいいですが、のんびり商売でもしながらの淡路島暮らしでもいかがですか?(駐車場の確保は必要ですが・・・)
2階は小屋組みがあらわしのままになっていたり、床も仕上げがしてなかったりと、思い通りに改装しやすいようになっています。どんな空間にアレンジしようかわくわくするはず。
この木造の家以外に向かって左側の鉄骨3F建ての建物も含まれています。
![]()
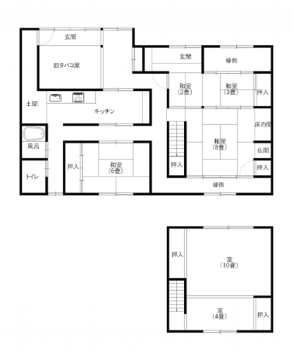
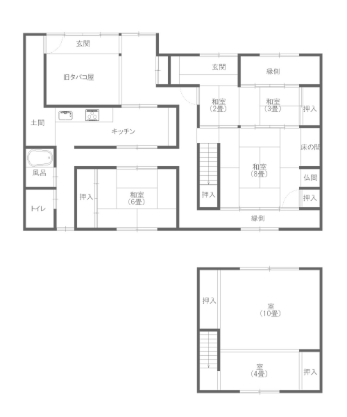
間 取 り も 、 い い 感 じ 。
![]()
![]()
写 真 で み て も 、 い い 感 じ 。
![]()
外観(道路より)
左より。 白い三階建ての鉄骨造、木造二階建ての住宅。木造平屋建ての元たばこ屋さん。
外観2(道路より)
道路より。少し斜めから。
玄関
玄関出てすぐ国道なので注意が必要です。木漏れ日が入って着てます。
和室
和室より玄関、縁側を見る
和室
ほとんどスペースはないが植栽の緑がうれしい。
キッチン
キッチン越しにたばこ屋を見る
キッチン
キッチン。
脱衣
タイル張りの脱衣室
浴室
浴室
元たばこ屋さん
元たばこ屋。
元たばこ屋さん
元たばこ屋。
元たばこ屋さん
このスペースで何ができるでしょう?
二階、屋根裏
立派な梁が表しになっている。どんな空間いになるでしょう。
二階からの景色
二階からの景色
| 物件番号 | 055 |
| 所在地 | 兵庫県淡路市塩尾網代 |
| 価格 | 1,250万円 |
| 土地面積 | 162.14㎡(約 49.04坪) |
| 建物面積 | 約 100㎡(約 30坪) |
| 建築構造 | 木造瓦葺2階建 |
| 築年 | - |
| 間取り | - |
| 建ぺい率/容積率 | - |
| 地目 | 宅地 |
| 取引様態 | - |
| 諸施設 | 関西電力、プロパンガス(個別)、公営水道 |
| 引き渡し時期 | 相談 |
| 備考 | 飲用水:公営水道 ガス:プロパン |





